
Les animaux de compagnie sont admis (un supplément peut s'appliquer).
Les enfants de tous âges sont acceptés.
Les enfants jusqu'à 3 ans (compris) séjournent gratuitement s'ils dorment dans un berceau disponible.
Les lits d'appoint ou lits bébés sont uniquement disponibles sur demande et doivent être confirmés par l'établissement.
Les suppléments ne sont pas automatiquement calculés dans le montant total de la réservation sur le site et doivent être réglés séparément directement auprès de l'établissement.
Veuillez informer l'établissement à l'avance de l'heure à laquelle vous prévoyez d'arriver. Vous pouvez indiquer cette information dans la rubrique « Demandes spéciales » lors de la réservation ou contacter directement l'établissement. Ses coordonnées figurent sur votre confirmation de réservation.
Vous devrez présenter une pièce d'identité avec photo et une carte de crédit lors de l'enregistrement. Veuillez noter que toutes les demandes spéciales seront satisfaites sous réserve de disponibilité et pourront entraîner des frais supplémentaires.
Vous devrez effectuer un virement bancaire avant votre arrivée. L'établissement vous contactera après votre réservation pour vous donner plus d'informations.
Les enterrements de vie de célibataire et autres fêtes de ce type sont interdits dans cet établissement.
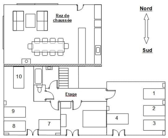
Hébergement géré par un particulier